Skip to main content
Go to the home page of the European Commission (opens in new window)
English English
CORDIS - EU research results
CORDIS

Earthquake-resilient self-centering steel frame

Periodic Reporting for period 1 - EQRESFRAME (Earthquake-resilient self-centering steel frame)

Reporting period: 2015-08-31 to 2017-08-30

An important challenge of future building and construction design is to combine the objectives of further structural design optimization with aspects related to structural seismic safety and resilience leading to smart minimal-damage seismic-resistant and sustainable structures. Resilience can be achieved with structures that can be easily repaired, if damaged, so that building service can be restored within an acceptable short, if not immediate, time after extreme loading conditions.

There is an urgent societal need for minimal-damage structures that can truly achieve seismic resilience. For example, researchers have developed self-centering moment resisting frames (SC-MRFs) with the goal of avoiding residual drifts, while others have focused on increasing the energy dissipation capacity of structures by adding dampers, such as Buckling Restrained Braces (BRBs) with the goal of reducing story drifts and story accelerations.

This project aims to investigate the seismic behaviour of minimal-damage SC_MRFs equipped with BRBs with the goal of achieving a structural system, which has the inherent mechanical properties (i.e. high stiffness, modest strength, re-centering force) to simultaneously control peak story drifts, residual story drifts, and peak floor velocities and accelerations. The project pays particular attention in the critical regions of this structural system, i.e. the beam-column-gusset plate connections and the column bases, for which both experimental and numerical assessment have been conducted.

Insights into the performance and residual capacity of dual systems made of BRB frames coupled with self-centering moment-resisting frames are provided through a simplified single-degree-of-freedom model. A non-dimensional formulation of the equation of motion is introduced, the statistic of the normalized peak, residual displacements and cumulated ductility of the system is evaluated for a set of ground motion records. Different values of the BRB target maximum ductility and coupled frame properties are considered.
During the first period of the project, the Fellow in collaboration with the Supervisor performed an extensive literature review on the state-of-the-art of Self-Centering Moment-Resisting Frames (SC-MRFs) and of the use of dissipative devices in buildings. This study showed the significant lack of knowledge in the behaviour of the column bases. A new configuration of a rocking damage-free steel column base has been developed. The column base uses PT high-strength steel bars to control rocking behaviour and FDs to dissipate seismic energy.

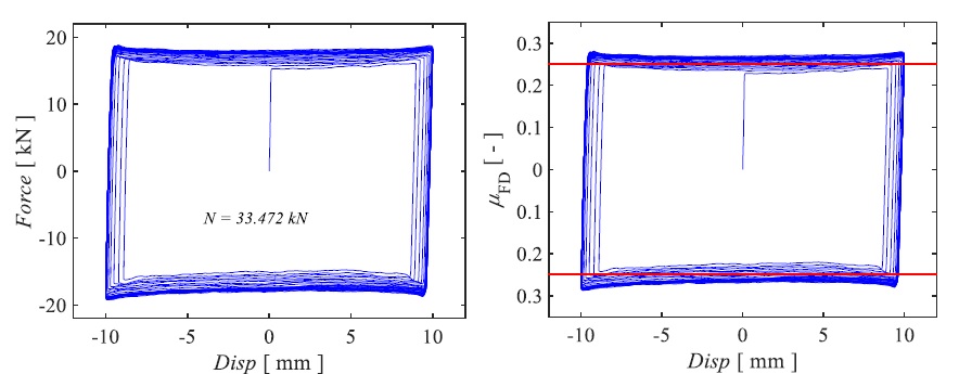
Analytical equations that describe the monotonic and cyclic moment–rotation hysteretic curves of the column base have been defined. The analytical equations consider different limit states including yielding or loss of post-tensioning in the PT bars. The column base is designed with the aid of an optimum graphical design procedure, which ensures damage-free behaviour, self-centering capability, and adequate energy dissipation capacity. Analytical moment–rotation equations and the design procedure are validated with nonlinear FE simulations in ABAQUS. Nonlinear dynamic analyses on steel SC-MRFs have been performed in OpenSees by using a simplified model of the rocking column base. The results show that the rocking column base fully protects the first story columns from yielding and eliminates the first story residual drift.

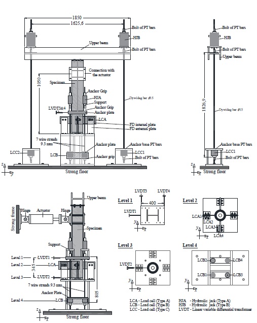
The new rocking damage-free steel column base with friction devices is experimentally tested and the experimental results are presented and analysed. Tests considering several displacement histories are conducted on a 2/3 scaled model of the column base within the laboratory of structural engineering of the University of Warwick. High-strength steel strands are used instead of steel bars in order to comply with the scaling equivalence. Preliminary tests on strands, bolts and friction devices are conducted in order to gain information on single components of the tests allowing a better calibration of the parameters. Coupon tests have been conducted in order to characterize the materials and to obtain stress-strain curves for the validation of the finite element models.

A parallel work focusing on the behaviour of the coupled Buckling Restrained Braced (BRB) Frames and SC-MRFs is conducted. BRBs are often employed for the seismic retrofit of existing buildings and the design of new structures, given their significant contribution in terms of stiffness and added damping. However, BRBs are characterized by a low lateral post-elastic stiffness, leading to excessive residual deformations that may compromise reparability. Moreover, accumulation of plastic deformations in the BRBs may compromise the capability of withstanding multiple earthquakes and aftershocks. The study provides insights into the performance and residual capacity of dual systems made of BRB frames coupled with moment-resisting frames, through a simplified single-degree-of-freedom model. A non-dimensional formulation of the equation of motion is introduced, the statistics of the normalized peak, residual displacements and cumulated ductility of the system are evaluated for a set of ground motion records. Different values of the BRB target maximum ductility and coupled frame properties are considered. This permits to evaluate how the system properties, and in particular the values of the ratio between the base shear of the BRB frame and the moment resisting frame, affect the median demand of normalized displacements, residual displacements, and cumulative BRB ductility. The study results provide information useful for the preliminary design of the coupled BRBFs and SC-MRFs systems.

The work performed results in one published journal paper and two journal papers under review. Moreover, seven conference papers have been published and two of them will be presented in the recent future in the European Conference of Earthquake Engineering 2018 to maximize the dissemination of the results.

The results have been also presented in three seminars in leading universities (Newcastle University, Strathclyde University, University of Genoa), at a conference for the general public at Norcia (Italy) which is one of the most hit towns from the earthquake of August 2016 in the center of Italy and at the SISMOexpo exhibition in order to maximise the public engagement.

The results have been regularly updated in the website of Prof. Karavasilis at Warwick University for the first part of the research project. In the following part, social media have been used as the main dissemination instrument.
The Fellow investigates and develops a new technology that can significantly improve the seismic behaviour of steel buildings. In particular, the application of this new technology directly responds to the societal demand for earthquake resilience and will help structural engineers worldwide to deliver steel buildings that can return to service within a short, if not immediate, time in the aftermath of a strong seismic event. In that way, the socio-economic losses (i.e. repair costs, downtime) associated with strong earthquakes will be significantly decreased.
Relationship between the tightening torque Tb and the bolt pre-loading force
Column base test assembly
Friction device test configuration
Moment–rotation behaviour of the column base and forces in the post-tensioned bars
Column base test assembly
Schematic rappresentation of the finite element (FE) model of the column base in OpenSees
Proposed column base and indication of the components
Friction device test history 2
Overview of the finite element (FE) model of the column base in Abaqus
Friction device test history 1
Friction device test - Picture 1
Column base test - Friction device detail
First story drift time histories for a specific ground motion
Graphical design method and moment–rotation behaviour of the column base
Column base test configuration
My booklet 0 0